1123 Walnut Street
This commission encompassed two separate commissions. The first one was to develop a two story mixed used building on a 48 feet wide by 150 feet deep “party” lot. The second challenge consisted on the design of a new typology of hospitality: a cannabis lounge for the recreational consumption of Marihuana.
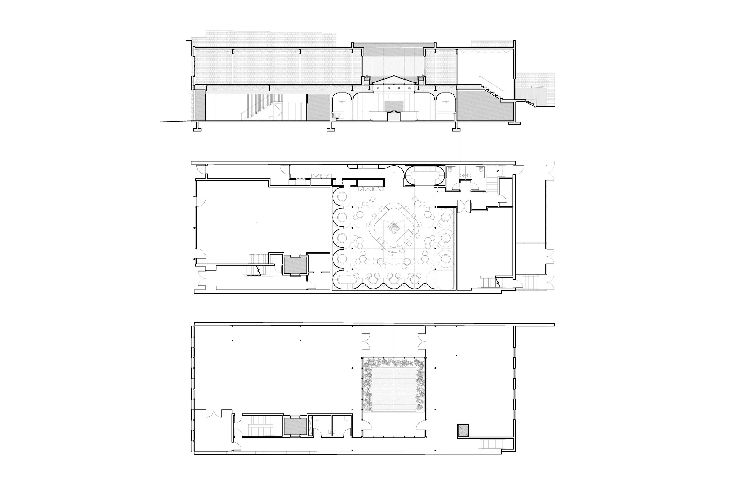
The project is facing Boulder’s Downtown Historic District, a Landmark area built around 1880 where most of the lots are 25 feet wide with brick party walls. After World War II plenty of these buildings were modernized with metal and precast facade panels.We identified the most characteristic formal elements of the 1880s: two brick party walls; upper story with a prominent roof cornice and 4’x8’ vertically proportioned windows; ground floor with large storefront display windows, recessed entrances, display window bulkheads and exposed cast iron columns.
We abstracted these elements to design the facade, applying contemporary materials with a reference to the modular and prefabricated panel systems from mid-century. Therefore, the upper level is solved with aluminum white crate panels mounted on brackets over a stucco finish, creating pattern with large 4’x8’ operable windows and folding on the top creating the cornice; ground floor with 12’ high glass panels, aluminum frames, aluminum cladding and circular white steelcolumns.
Since the street level required separate entrances for the three different uses, we proposed two symmetrical recessed entrances on both sides of the facade. The entrance to the hospitality on the East end and the entrance to the office space on the West side, with the retail storefront running in between.
As the marihuana hospitality required a space depraved of windows, we placed it on the back area of the ground floor. In order to bring natural light to the space, we conceived a large 16×16 feet skylight flooding the space with light through a gold aluminum crate that impedes direct visual contact between inside and outside. The skylight becomes an open patio with a terrace on the second floor that contributes to organize the office space. In section the skylight and the patio work together as an inverted terraced pyramid, bringing natural light uniformly throughout the deep floor plan. Some vegetation sits in the perimeter of the skylight.
The vestibule of the office space is crowned with a white perforated metal staircase suspended from the ceiling with back lit reclaimed wood treads recovered from the original building. The second floor, conceived as office rental in its entirety, is an open plan with a service barallocating bathrooms, kitchenette and vertical circulation. Through the long windowed wall and the aluminum crate facade, the office takes advantage of the spectacular Iron flats views.
Designer: Miguel Quismondo, AIA with Juan Carlos Bragado Location: Boulder, CO Completion Date: December 2022 Built area: 20,000 sq.ft Team: Juan Carlos Bragado, Jacobo Mingorance, Ignacio De Siloniz Client: 1123 Walnut LLC Architect of Record: Bray Architecture, Inc. Structural Engineer: Gebau Structural Engineers Civil Engineer: Scott Cox & Associates, Inc. MEP Engineers: Boulder Engineering Company Lighting Consultant: MAP Design Studio Contractor: Sand Construction of Colorado, LLC Photography: Imagen Subliminal
