EMATM Foundation
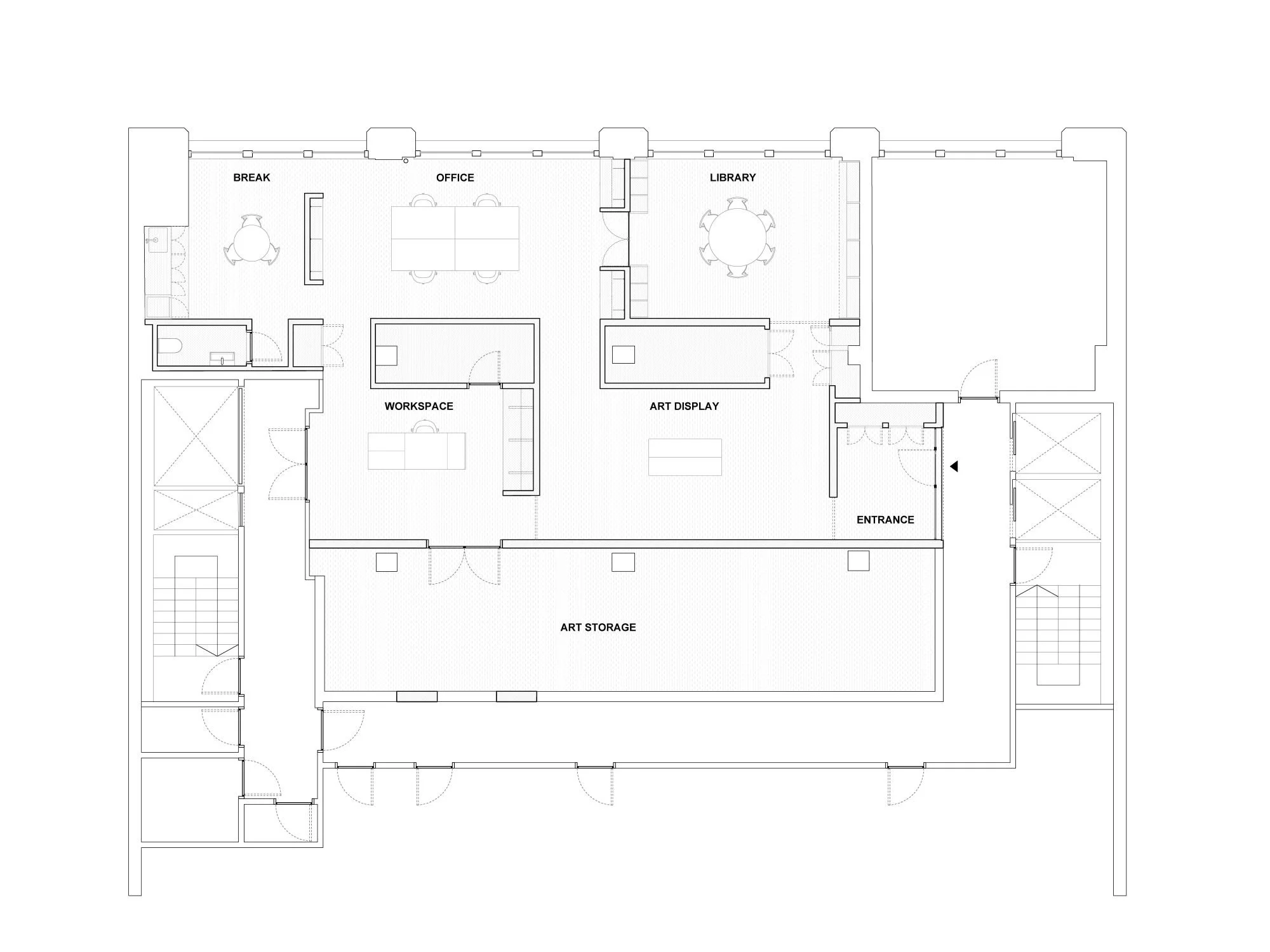
We are designing the new headquarters for the EMATM Foundation, dedicated to preserving and promoting the work of Emily Mason and Alice Trumbull Mason. The project goes beyond offices: it brings together exhibition areas, research facilities, and climate-controlled storage to safeguard the foundation’s collection and make it accessible for study.
Housed in a former printing facility in New York, the space maintains its industrial character, with concrete waffle slab ceilings and original flooring, while being reimagined for its new role. With a fast-track schedule set to complete in November 2025, the headquarters will provide the foundation with a place to preserve, investigate, and share its legacy with the public.
Client: EMATM Foundation Architecture: Miguel Quismondo, AIA Team: Javier Rodríguez Izquierdo, Juan Carlos Bragado, Ignacio de Silóniz & William Mulvihill
