World Council of Churches
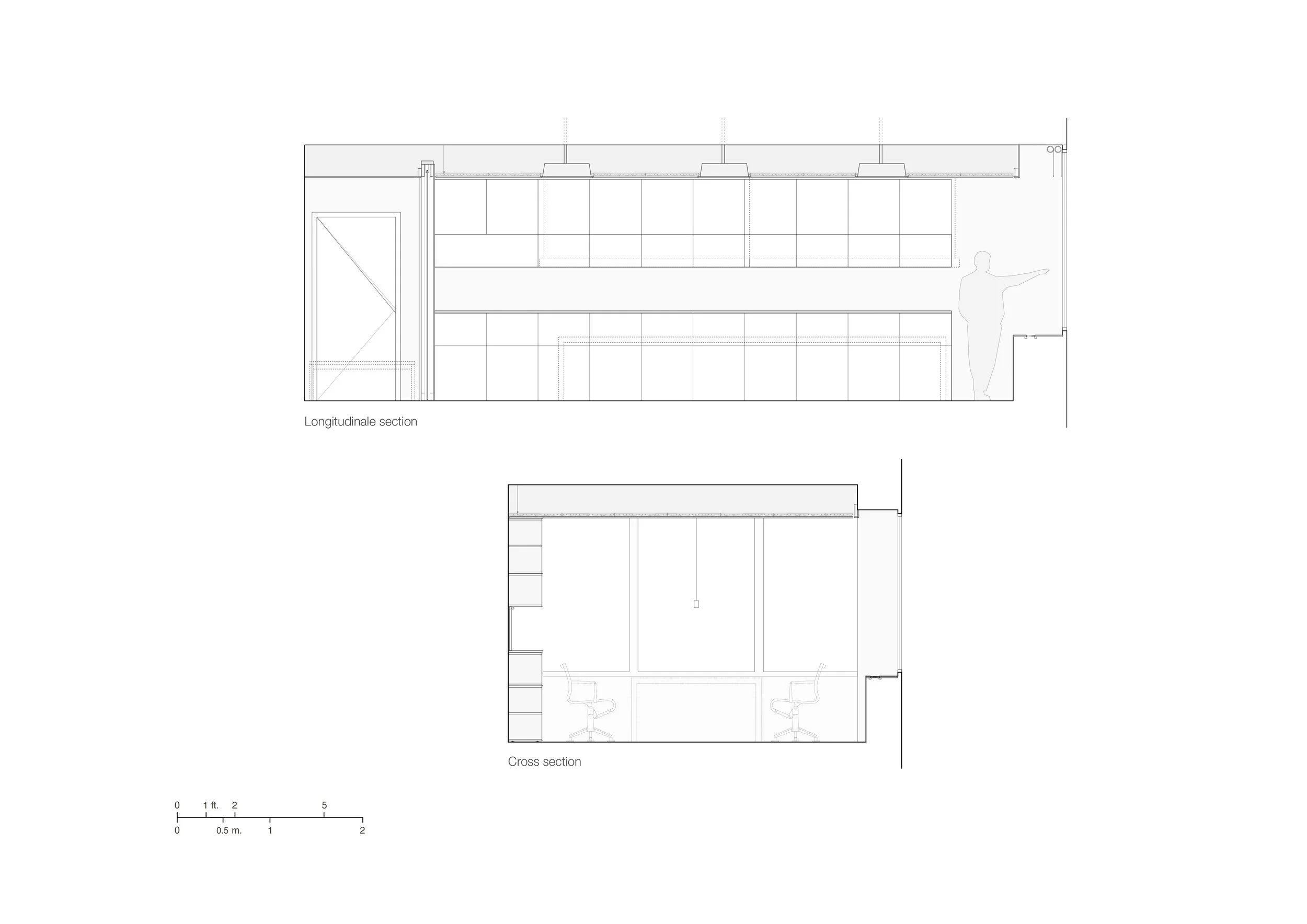
World Council of Churches, an organization adhered to the Ecumenical United Nations Office, is located in a building across the street from the United Nations building, and enjoys prime views of the building. We were hired to renovate a small space that was compartmented in three small cubicles and needed to add work station for itinerary colleagues.
We convinced the client to change the way they work and proposed a single communal space that would have a main table that would allow for six stations. We created a small welcome vestibule that helps for privacy calls thanks to a sliding pocket door and allows for a storage space on the back. We decided to put the effort on the central desk by Unifor, and created a white neutral background with the room. The mirror on top of the counter space brings in the light and the views to those who sit with their back towards the windows. The new office space provides work stations and allows videoconferencing and hosting of presentations and events.
Architect: Miguel Quismondo and Yoshiki Waterhouse Location: New York, NY Built area: 650 sq.ft. Completion Date: 2013 Client: Ecumenical United Nations Office Photography: Javier Callejas
